32
$345,000 Sale
Listed 8 hours ago
3415 Uplands Drive, #39
· 2+1
· 2
· 1
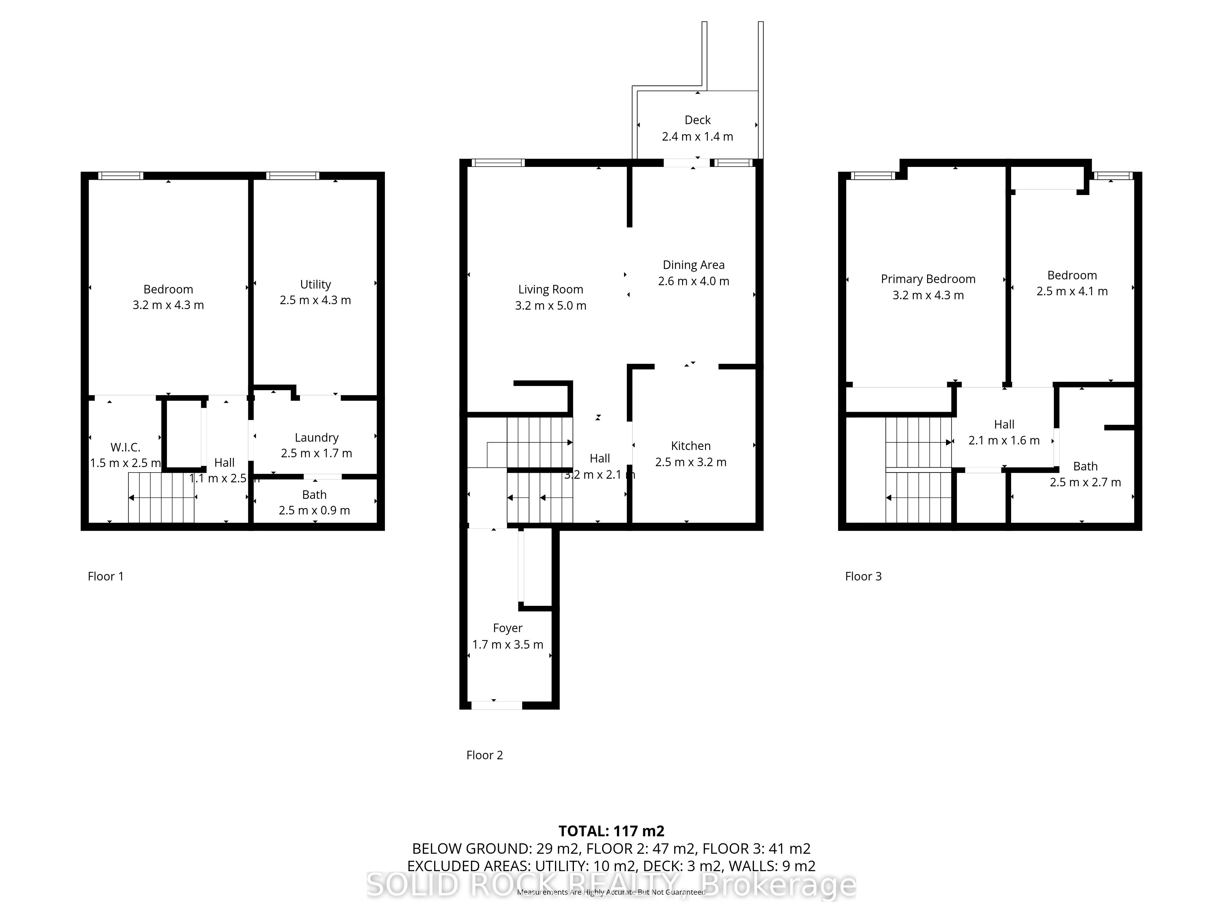
· 1200-1399
Listing History
Buy/Sell/Terminated/Expired listing history for 3415 Uplands Drive, #39
Key Facts
Key facts for 3415 Uplands Drive, #39
Property Type
Condo, 2-Storey
Parking
Surface,Covered 0 garage, 1 parking
MLS #
X12455244
Size
1200-1399 sqft
Basement
Full
Listed on
2025-10-09
Lot size
-
Tax
$2,588 /yr
Days on Market
1
Approximate Age
31-50
Maintenance Fee
$678.75/mo Parking, Water, Buil...
Description
Welcome to this freshly updated condo offering a rare combination of space, comfort, and outdoor living! The main floor features a kitchen with stainless steel appliances, an open-concept living and dining area and direct access to your very own private, fenced yard through the dining room. Unlike s...ome other units in the complex that only have a balcony, this exclusive outdoor space is perfect for families, pets, and anyone who values privacy and room to relax or entertain. Upstairs, you will find a generously sized primary bedroom, a well-proportioned second bedroom, and a brand-new full bathroom, fully renovated in August 2025. The lower level adds even more versatility with an additional bedroom, a convenient powder room, a laundry area and plenty of storage space. Recently painted and move-in ready. 24 hour irrevocable on all offers.
Similar Properties (No results)
Courtesy of: SOLID ROCK REALTY